ステンレスなどの精密板金・プレス加工におけるイニシャルコストとトータルコスト低減に役立つVA・VEコストダウン技術情報発信サイト

見積回答が「早い図面」と「遅い図面」の決定的な違いとは?

「メーカーに見積を依頼したけれど、なかなか回答が来ない…」 

「加工図面の確認事項で何度もやり取りが発生し、試作の着手が遅れてしまった」

 

一度はこのような経験があるのではないでしょうか? 特に開発リードタイムが短い場合は、見積回答のスピードは案件の進捗を左右する重要な要素です。

 

実は、見積回答が「早い図面」と「遅い図面」には、決定的な違いがあります。

 

もちろん、レスポンスの早い企業を選ぶことも重要ですが、作成する「加工図面」一つで、見積スピードを向上させることができます。

 

そこで今回は、スムーズな見積回答を引き出し、かつコストダウンにもつながる「加工図面のポイント」をお伝えします。

 

見積回答が「早い図面」と「遅い図面」の違い

精密板金メーカー側が見積時に最初に行うのは「製品として実際に製作できるかの確認」「どう作るかの工程設計」そして「コスト計算」です。

 

この時、見積回答が「早い図面」とは、見積担当者が寸法を計算をしたり、設計者に設計仕様で問い合わせをする必要がない図面です。逆に、情報が不足していたり、過剰な指示があったりすると、確認作業のために見積回答のスピードは遅くなりがちです。

 

では具体的にどのポイントを押さえればよいのか、3つのポイントに絞って解説します。

 

ポイント①:「計算」が不要なように寸法を入れる

1つ目のポイントは、寸法の入れ方です。

見積時には、材料取りをするために「製品全体サイズ」を把握する必要があります。また、曲げ加工などの各種工程を検討するために、基準面からの寸法を確認します。

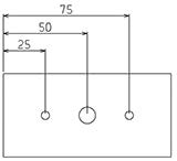
寸法がバラバラに配置されている、あるいは下記のように相対寸法で製図をされている場合、全体寸法や穴位置を把握するために、「A寸法 + B寸法 + C寸法…」と計算をしなければなりません。この場合、計算の手間がかかるだけでなく、計算ミスのリスクも高まります。

相対寸法ではなく絶対寸法で板金図面を作成する

図1. 相対寸法の製図例

したがって、絶対寸法を基本として製図を行えば、基準面からの距離が一目で分かるため、計算する手間と計算ミスが省けます。結果的に時間短縮や品質異常の低減に繋げることができます。

 

図2. 絶対寸法の製図例

>>絶対寸法で板金図面の書き方はこちら

 

ポイント②:不要な溶接指示せず、「製品に何を求めているか」を伝え、作業は精密板金メーカーに一任する

2つ目のポイントは、溶接指示の方法です。 良かれと思って詳細に指示を記載した結果、かえって見積や製作を遅らせてしまう、また品質低下やコストアップしてしまうケースがあります。

例えば、下記図3のケースは、平板にL字部品を取り付ける加工図面で、2か所のスポット溶接の取付指示および図面に外観面の記載があります。この場合、外観品質を確保するために電流値を弱くして溶接を行いますが、2か所では溶接強度が不十分です。このように加工時のことを理解して溶接指示をしなければ、指示が少なすぎたり、逆に過剰になってしまうなど不具合が生じてしまいます。

図3.  溶接指示の悪い例

図3のようなケースは、本来は3か所を溶接する方が望ましいです。

図4. 溶接指示の良い例

ただし、設計者が現場作業を把握するのは難しいです。したがって、「水漏れ不可」の指示など「製品に何を求めているか」や、外観と強度をどの程度重視するのか、その他に溶接範囲を板金加工会社にきっちりと伝えたうえで、図4のように、「スポット溶接は作業者に一任」と記載し、溶接箇所は精密板金メーカー側に一任するのがベストです。

このように求める性能や機能を伝えることで設計側が想定していない事にも対応し、必要な要件を満たした製品を作ることにもつながります。

>>スピーディーに案件を進めるための溶接指示はこちら

 

ポイント③:板厚・材質を分かりやすい位置に記載する

三つ目のポイントは、材質や板厚の記載場所です。 単純なことに思えますが、意外と見落としがちなポイントです。例えば図面内の部品の近くに直接テキストで「SUS304 t1.5」などとバラバラに書かれている図面の場合、部品点数が多いと見落としや確認時間が大幅に増えます。

したがって、図面の別枠に材質と板厚といった情報をまとめると、図面の確認がしやすくなり、 スムーズに案件を進めることができます。

 

コストダウン・品質向上を実現する精密板金は、精密板金ひらめき.comまで!

ここまで、見積回答を早くするための図面のポイントをお伝えしました。このように精密板金ひらめき.comを運営するCREST PRECISIONでは、単に図面通りに作るだけではなく、頂いた加工図面を拝見し、より品質が高く、コストを抑えられる製作方法を積極的にご提案しております。

また当社は豊富な新規試作実績によるノウハウがあり、設計段階から、コストダウン提案や機能性を高める提案を行うことが可能です。精密板金加工で何かお困りのことがございましたら、お気軽に当社までご相談ください。

>>お問い合わせはこちら

>>優秀な板金設計者が実践している加工図面の描き方はこちら

精密板金加工に関する
技術相談室

0266-22-5502
FAX 0266-22-3879
お問合わせ